Mikonkatu 9, Helsinki
Mikonkatu 9, 00100 Helsinki
Jylhä kulmakiinteistö Ateneumin vieressä
Mikonkatu 9 sijaitsee Helsingin keskustan paraatipaikalla aivan Rautatientorin ja Ateneumin vieressä. Ylimmistä kerroksista avautuvat ainutlaatuiset näkymät aseman kellotornille, Ateneumille, Postitalolle sekä vilkkaalle Rautatientorille.
Alueelta löytyy runsas valikoima lounasravintoloita ja kahviloita sekä Helsingin ydinkeskustan parhaat palvelut. Kiinteistön kahdeksassa kerroksessa toimiva Epicenter Helsinki tarjoaa kattavat palvelut ja monipuoliset verkostoitumismahdollisuudet. Kiinteistöstä löytyy erikokoisten yritysten toimistoja, kokoushuoneita, yhteisöllisiä taukotiloja sekä oman talon lounasravintola. Lisäksi Epicenterin monipuolisista avoimen työskentelyn tiloista on mahdollista vuokrata henkilökohtainen työpiste lyhyeksi tai pidemmäksi aikaa.
Innovatiivinen yhteisö ja kattavat palvelut
Epicenter Helsinki tarjoaa digitaalisuuteen ja teknologioihin keskittyneille yrityksille ja yrittäjille innovatiivisen yhteisön ja kokonaisvaltaiset palvelut. Valittavana on erilaisia jäsenyyksiä lähi-, etä- ja hybridityön tarpeisiin inspiroivassa ympäristössä.
Epicenteristä löytyy oma podcast-studio, upea 250 henkilön tapahtumatila, vastaanottopalvelut, monipuoliset kokoustilat, vuokrattavaa varastotilaa, hyvin varusteltu kuntosali sekä lounasravintola catering-palveluineen.
Epicenter tarjoaa säännölliset verkostoitumis- ja yhteisötapahtumat ilmaiseksi jäsenille sekä vapaan pääsyn Epicenterin toimipisteisiin myös Tukholmassa ja Oslossa.
Lue lisää Epicenteristä
Vapaat tilat
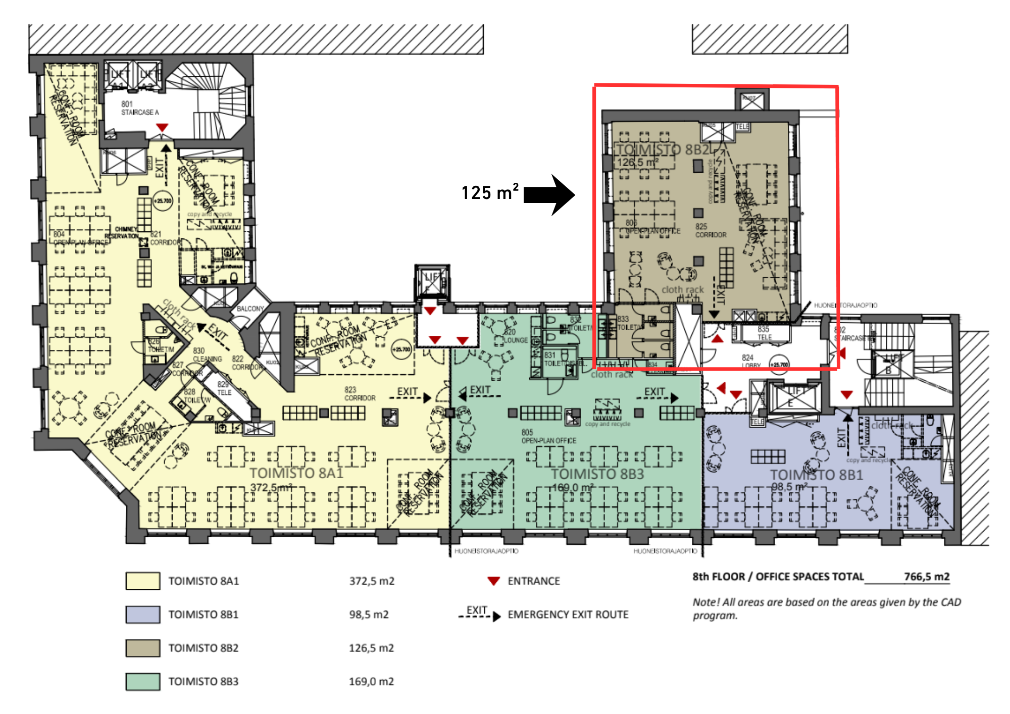
125 m2 8. kerros Toimisto 1.10.2026


Toimisto 125 m2
Mikonkatu 9, 00100 Helsinki
Vuokrataan ylimmän kerroksen 125 m2 yksityistoimisto Helsingin paraatipaikalta. Oma sisäänkäynti tai kulku Epicenterin yhteistilojen ja vastaanoton kautta. Kalustettuna tai vuokralaisen kalustettavissa.
- Tilan tyyppiToimisto
- Tilan koko125 m2
- Kerros8/8
- Työpisteitä14
- Vapautuminen1.10.2026
375 m2 7. kerros Toimisto 1.1.2027


Toimisto 375 m2
Mikonkatu 9, 00100 Helsinki
Vuokrataan iso 375 m2 yksityistoimisto Helsingin paraatipaikalta seitsemännestä kerroksesta. Oma sisäänkäynti tai kulku Epicenterin yhteistilojen ja vastaanoton kautta. Kalustettuna tai vuokralaisen kalustettavissa. Tilaan mahtuu jopa 40 työpistettä.
- Tilan tyyppiToimisto
- Tilan koko375 m2
- Kerros7/8
- Työpisteitä40
- Vapautuminen1.1.2027
170 m2 7. kerros Toimisto 1.1.2027


Toimisto 170 m2
Mikonkatu 9, 00100 Helsinki
Vuokrataan 170 m2 yksityistoimisto Helsingin paraatipaikalta. Oma sisäänkäynti tai kulku Epicenterin yhteistilojen ja vastaanoton kautta. Kalustettuna tai vuokralaisen kalustettavissa.
- Tilan tyyppiToimisto
- Tilan koko170 m2
- Kerros7/8
- Työpisteitä20
- Vapautuminen1.1.2027
125 m2 7. kerros Toimisto 1.1.2027


Toimisto 125 m2
Mikonkatu 9, 00100 Helsinki
Vuokrataan 125 m2 yksityistoimisto Helsingin paraatipaikalta. Oma sisäänkäynti tai kulku Epicenterin yhteistilojen ja vastaanoton kautta. Kalustettuna tai vuokralaisen kalustettavissa.
- Tilan tyyppiToimisto
- Tilan koko125 m2
- Kerros7/8
- Työpisteitä14
- Vapautuminen1.1.2027
98 m2 7. kerros Toimisto 1.1.2027


Toimisto 98 m2
Mikonkatu 9, 00100 Helsinki
Vuokrataan 98 m2 yksityistoimisto Helsingin paraatipaikalta. Oma sisäänkäynti tai kulku Epicenterin yhteistilojen ja vastaanoton kautta. Kalustettuna tai vuokralaisen kalustettavissa.
- Tilan tyyppiToimisto
- Tilan koko98 m2
- Kerros7/8
- Työpisteitä12
- Vapautuminen1.1.2027
170,0 m2 6. kerros Toimisto Heti vapaa


Toimisto 170 m2
Mikonkatu 9, 00100 Helsinki
Vuokrataan remontoitu 170 m2 yksityistoimisto Helsingin paraatipaikalta. Valoisaa avotilaa, erillinen neuvotteluhuone ja valoisa avokeittiönurkkaus. Oma sisäänkäynti tai kulku Epicenterin yhteistilojen ja vastaanoton kautta. Kalustettuna tai vuokralaisen kalustettavissa.
- Tilan tyyppiToimisto
- Tilan koko170,0 m2
- Kerros6/8
- Työpisteitä20
- VapautuminenHeti vapaa
Kiinteistön palvelut
Näkyvä sijainti palveluiden keskellä
Jyhkeä funkkishelmi sijaitsee erinomaisella paikalla keskellä Helsinkiä, vilkkaan kävelykadun vieressä WTC Plazan ja Ateneumin naapurissa. Mikonkatua kulkevalla raitiovaunulinja 7:lla pääsee kätevästi Kamppiin, ja rautatieasemalle on vain 150 metriä. Ydinkeskustan monipuoliset palvelut ovat lähellä.
Lähin pysäköintihalli on P-Kluuvi, jonka jalankulun sisäänkäynti löytyy Yliopistokadun ja Kluuvikadun kulmasta.
Kiinteistön tiedot
Rakennusvuosi
1929
Korjausvuosi
2018
Kokonaispinta-ala
7 796,5 m²
Liiketila
1120 m²
Logistiikkatila
646,4 m²
Kiinnostuitko tästä kiinteistöstä tai sen tilasta?
Ota yhteyttä kysyäksesi lisää tai varataksesi uuden toimitilan. Autamme sinua löytämään juuri sinulle sopivan tilan. Voit olla yhteydessä meihin myös puhelimitse tai sähköpostilla, löydät yhteystietomme Ota yhteyttä -sivulta.